Trilocale Mq 72
Via Guglielmo Pecori Giraldi, 5, 20139 Milano MI, Italia
€360.000200 SPESE
Informazioni di base
- Categoria: Abitazioni in vendita
- Area, m²: 72 m²
- Locali: 3
- Piano: 6
- Camere da letto: 2
- Bagni: 1
- Cucina: A VISTA
- Balcone: 2
- Giardino: si
- Posto auto: si
- Portineria: si
- Ascensore: si
- Data aggiunta: Aggiunto 3 settimane fa
Descrizione
-
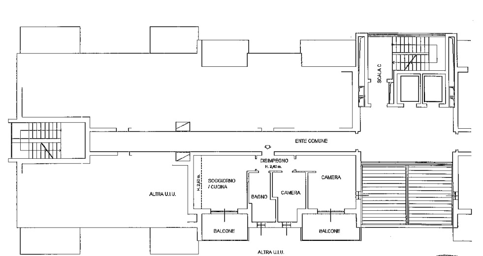
Descrizione: Trilocale ristrutturato con terrazze, vista aperta e posto auto In una zona strategica e ben collegata di Milano, a pochi minuti a piedi dalle fermate Metro Porto di Mare e Metro Corvetto (Linea M3 – Gialla), proponiamo in vendita trilocale di 72 mq completamente ristrutturato nel 2021, pronto da abitare. L’appartamento è situato al sesto piano (penultimo) di uno stabile moderno servito da due ascensori. L’assenza di edifici frontali garantisce vista aperta e panoramica, con affacci sullo skyline di Milano e sulle montagne, oltre a un’eccellente luminosità durante tutta la giornata. La zona living, moderna e luminosa, ospita una cucina a vista e si apre su una terrazza vivibile, ideale per pranzi all’aperto, cene estive e momenti di relax. La camera matrimoniale, ampia e confortevole, ha accesso a una seconda terrazza, perfetta per piante, armadiature esterne e stendibiancheria, mantenendo ordine ed estetica. Completano l’abitazione una camera singola versatile (studio o cameretta) e un bagno finestrato, di generose dimensioni e rifinito con materiali di qualità. L’immobile è dotato di: Riscaldamento e raffrescamento a pavimento Termostati indipendenti in ogni stanza Zanzariere su tutte le finestre Cantina di 7 mq, ideale per scaffalature e vini Posto auto di 19 mq, comodo e di facile accesso Il complesso residenziale dispone di ampio parco condominiale, area giochi per bambini e area fitness, rendendolo ideale per famiglie e per chi cerca spazi verdi senza rinunciare alla città. La zona offre tutti i servizi essenziali sotto casa: supermercati come Esselunga, Carrefour e Lidl, farmacie, bar, palestre, scuole e aree verdi. Sono inoltre facilmente raggiungibili importanti strutture sanitarie come IEO – Istituto Europeo di Oncologia e Ospedale San Paolo. Prezzo comprensivo dei principali arredi (cucina, letto matrimoniale, divano, arredo bagno, comodini e tavolo da pranzo).Disponibile da luglio, pronto per essere abitato senza ulteriori lavori. Una soluzione completa che unisce spazi esterni rari, comfort moderni, vista aperta e collegamenti eccellenti.
Classe energetica B
Tutte le informazioni relative a immobili in vendita o in locazione provengono da fonti ritenute affidabili, ma non viene fornita alcuna garanzia relativamente alla loro esattezza e la stessa è soggetta a errori, omissioni, cambi di prezzo e di canone o di ritiro dal mercato senza alcun preavviso prima della compravendita. Le planimetrie sono da ritenersi indicative. I contenuti di questo documento non costituiscono in ogni caso elementi validi ai fini contrattuali.
Posizione
- Indirizzo: Via G. Pecori Girardi n. 5
- Città: Milano
- Cap: 20100
Powered by Estatik
